
環衛垃圾車側裝后卸(壓縮)式垃圾車—湖北程力專用汽車股份有限公司專業生產廠家,采用先進的技術,高端的配套件,壓縮式垃圾車質量可靠價格優。
感謝您對湖北程力專用汽車有限公司的支持與信賴!我們將會盡最大的努力,竭誠為您提供最優質的產品和最上乘的服務!感謝您在百忙之中對我們的產品進行了解,以下為您將側裝后卸(壓縮)式垃圾車圾車進行簡單的介紹 :
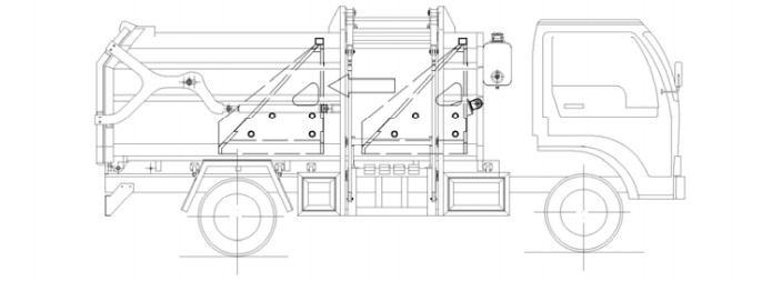
一、側裝后卸(壓縮)式垃圾車結構簡圖:

側裝壓縮垃圾車外形結構簡圖
二、側裝后卸(壓縮)式垃圾車操作步驟:
該車操作控制為 3 個位置分別在駕駛室內(電控)、箱體前端手動(備用)和箱體前端提升機傍邊(電控),均可以獨立控制操作該車的工作。具體操作請遵循以下步驟進行。在裝載垃圾或卸料前,空載運轉達到 6 個標準氣壓時,掛上取力器(駕駛室內方向盤左下方),液壓油泵開始工作,檢查各部件有無泄漏或異常后,再按照操牌指示位置和操作方法進行操作; 同樣,在該專用車的各項專用功能操作完成后,摘掉取力器,使液壓系統停止工作。 垃圾運輸車操作指示牌 如圖:
垃圾運輸車具體操作方法及步驟如下:
掛桶及垃圾裝載
首先將垃圾桶推移到提升機掛鉤處,同時將桶提掛位放在掛鉤上,推動提升機操作開關(或手柄)至上升位置,這時上蓋油缸動作,從而帶動提升機拉桿向上運動,垃圾桶被掛起,同時上蓋也逐漸被打開;如圖:

推移垃圾桶并靠緊提升機
當提升機和垃圾桶上升到一定位置時,垃圾桶被鎖緊(或壓緊),最后垃圾桶隨提升機翻板一起上升到箱體頂端,上蓋完全打開,并翻倒桶內垃圾至箱體;如圖:

松開提升機操作開關(或手柄)回中位,上蓋油缸停止工作,提升機各部件和垃圾桶停止不動;將推動提升機操作開關(或手柄)至下降位置,這時上蓋油缸收回,從而使提升機拉桿和垃圾桶向下翻轉,垃圾桶逐漸被放下并松開,直至放回地面;松開提升機操作開關(或手柄)回中位,最后移開垃圾桶,完成一次垃圾裝載的工作。
注意:垃圾運輸車操作時,提升機旁和垃圾桶下嚴禁止站人!
當垃圾裝載一定次數后,垃圾在車箱內的分布主要堆積在箱體前方推板之后,為了使垃圾在箱內裝載均勻,這時因該將前部的垃圾向后推移,同時在推移的過程中又能起到一定的垃圾壓縮效果,具體方法與步驟如下;
垃圾向后推移
首先檢查箱體后門是否關閉及后門下鎖緊鉤是否將后門鉤住,否則在向后推移垃圾時,會將垃圾推出或造成機構損壞。將推板操作開關(或手柄)推至推出位置,卸料推板在油缸的推動下將箱體內的垃圾向后推移;從箱體前端觀察,推板向后移動因超過投料口位置,以免影響下次裝載垃圾;如圖:

操作卸料推板,使垃圾向箱體后方移動
觀察液壓系統壓力表(車箱前端)壓力值增加時,松開手柄會中位,再將推板操作開關(或手柄)推至收回位置,卸料推板收回;從箱體前端觀察,推板收回到箱體最前端,松開手柄會中位,完成垃圾推移工作。
注意:操作員可根據該車的裝載能力及效果,適當的控制裝載次數和推移壓力,使該車的裝載效果達到良好狀態,切勿強行推壓而造成箱體機構或其它損壞!
推卸垃圾
在推卸垃圾過程前,首先必須打開后門鎖緊鉤,即將后門鎖操作開關(或手柄)推至打開位置,鎖緊油缸帶動鎖緊鉤轉動,待鎖緊鉤脫開后,松開開關(或手柄)回中位,準備開啟后門;如圖:

后門下鎖緊鉤被打開
再將后門操作開關(或手柄)推至打開位置,后門在箱體兩側的油缸的推動先水平移動,然后向上翻轉開啟,待后門完全開啟后,松開操作開關(或手柄)回中位,準備推卸垃圾;如圖:

后門向后平移打開后,并向上翻轉開啟
后門完全開啟后,將推板操作開關(或手柄)推至推出位置,垃圾隨卸料推板的移動而卸出,當推板油缸全部伸出后,松開操作開關(或手柄)回中位,檢查垃圾卸出后情況,并作適當的調整或清理,以避免垃圾堆積后方妨礙后門關閉;如圖:

操作卸料推板,將垃圾退出車箱
待垃圾完全卸出后,將推板操作開關(或手柄)推至收回位置,卸料推板移動收回,當推板完全收回到車箱前部,松開操作開關(或手柄)回中位,準備關閉后門;將后門操作開關(或手柄)推至關閉位置,后門在箱體兩側的油缸帶動后門向向下翻轉、水平回拉關緊,待后門完全關閉后,松開操作開關(或手柄)回中位; 最后將后門鎖操作開關(或手柄)推至鎖緊位置,鎖緊油缸帶動鎖緊鉤轉動,待鎖緊鉤鉤住后門后,松開開關(或手柄)回中位,推卸垃圾工作完成。
注意:操作垃圾運輸車時,后門開啟或關閉即推卸垃圾時,車箱后方嚴禁止站人!
湖北程力專用汽車股份有限公司(http://www.qdjinhuishimo.cn)國家知名園林綠化,市政環衛專用汽車制造廠家,專業生產:環衛垃圾車,多功能灑水車,吸污(糞)車,清障車等專用車系列,歡迎來電咨詢環衛垃圾車價格,灑水車價格等。銷售電話:13997888309 聯系人:張春連